Built to a Higher Standard
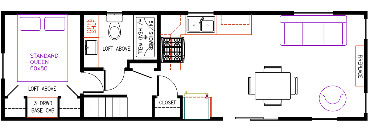
Elevation floorplans have been engineered to utilize the maximum 400 square feet in the most efficient way possible. Each Park Model can be built as a single, double, or non-loft, also giving the option of a straight or drop frame. Customers have the ability to choose between five front-end window designs, multiple bathroom layouts, and different wardrobe options, which are interchangeable in each floorplan. Many plans can accommodate amenities such as washer & dryer, dishwasher, larger refrigerator, or sectional sofa. Depending on the location of the unit, customers can select to have the floorplan flipped end-to-end or rolled side-to-side to best suit their needs.
3-Series Loft Floorplans
3-Series Non-Loft Floorplans
Please note: All floorplans can be flipped end to end, or rolled side to side.







